
Paon
- Options à choisir
- La description
- Caractéristiques
Charmante et spacieuse grange de jardin, avec un toit à forte pente de 42°. Nous utilisons ici le sapin blanc du Nord. Tout le bois est certifié PEFC et toujours livré avec un certificat d'authenticité.
Idéal pour créer un endroit ombragé et agréable dans votre jardin. Le toit est recouvert de bardeaux d'asphalte, avec couleur au choix.
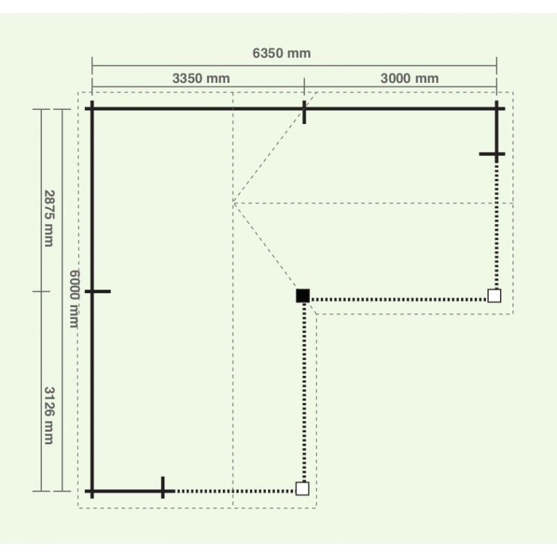
| Façade: | 635 cm |
| Profondeur: | 600 cm |
| épaisseur-de-la-paroi: | 45 mm |
| Pente du toit: | 19° |
| Hauteur à côté: | 208 cm |
| Hauteur de faîte: | 278 cm |
| Debord devant: | 24 cm |
| Debord à l'arrière: | 24 cm |
| Debord côté gauche: | 16 cm |
| Debord côté droit: | 16 cm |
| Type: | granges |
| marque: | grandcasa |
| type-de-toiture: | toit-en-batiere |
| ligne: | cottage-country |
| méthode-de-construction: | Système d’emboîtement |


