
Harriet 28 m²
- La description
- Caractéristiques
Le drainage de l'eau est inclus, ainsi que le double caoutchouc de fondation pour une connexion parfaite avec la surface en-dessous.
Chalet Center dispose de son propre service de montage, veuillez nous contacter pour plus d’informations ainsi qu' un devis gratuit.
Le thermowood est obtenu par un traitement thermique du bois de conifère à une température minimale de 215 °C. Grâce à l’utilisation de la vapeur pour éviter la formation de fissures et entailles du bois, il en résulte une odeur caractéristique de fumée. Les parois externes mesurent 26 x 132 cm comprenant des nervures de 60 mm. La dimension des planchettes est 14 x 131 mm. Une fois traité, le bois thermique est similaire au bois dur tropical de classe I. Notre thermowood a une couleur chaude et attirante qui deviendra uniformément grise après quelque temps. Il ne se déforme pratiquement pas et ce traitement augmente considérablement la durabilité et la résistance à l’humidité. Le ThermoWood résiste aux insectes tels que les longicornes, les petites vrillettes et lyctes bruns. Pour cette raison ce matériau est particulièrement adapté aux utilisations extérieures.
Bois de Grange, ce revêtement en bois unique et rustique est fabriqué à partir de bois de conifère de récupération de plus de 200 ans. Au 19e siècle, les fermiers construisaient de grandes granges en bois (barns). Plus de 200 ans plus tard, ces granges ne sont plus utilisées et sont démontées avec soin. Le bois de grange obtenu de la sorte s’inscrit donc parfaitement dans le principe du « berceau au berceau ». Le matériau qui a perdu sa fonction dans une application retrouve son utilité dans une nouvelle application sans perdre de sa qualité. En outre, un cycle durable et bon pour l’environnement des matériaux est ainsi créé. Ce bois authentique patiné a une épaisseur de 20 à 30 mm et sa largeur varie entre 10 et 25 cm.
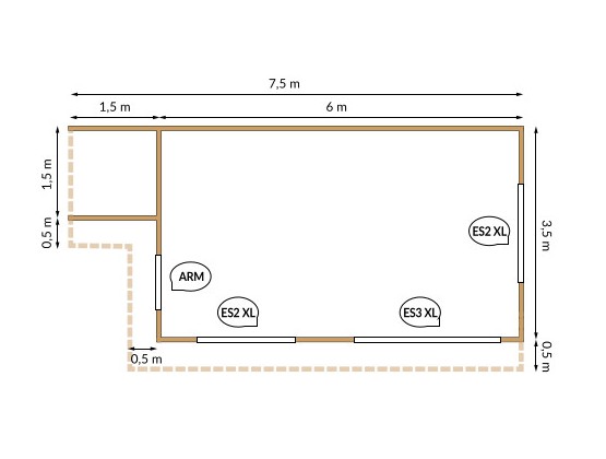
| Façade: | 750 cm |
| Profondeur: | 400 cm |
| Hauteur à côté: | 230 |
| Hauteur de faîte: | 267 |
| Couverture du toit: | EPDM |
| Evacuation d'eau: | avaloir pour égouttage |
| Finition de toit: | Aluminium |
| Portes: | 2 ES2XL, 1 ES3XL |
| Fenêtres: | 1 ARM |
| Type: | design-avec-baie-vitree |
| Type: | poolhouse |
| Type: | luxe |
| marque: | decodesign |
| style: | moderne |
| type-de-toiture: | toit-plat |
| méthode-de-construction: | à ossature bois |


